TYPE K
40.76坪
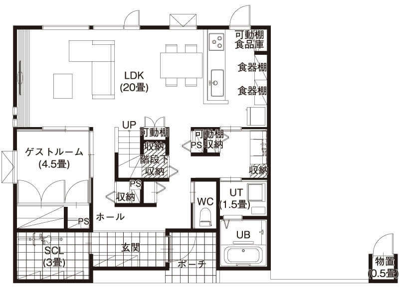
アウトドア派に活躍する大容量のシューズクローク。
収納充実の機能性に溢れた設計です。

- 1階床面積
- 78.433㎡(23.73坪)
- 2階床面積
- 52.172㎡(15.78坪)
- 延床面積
- 130.605㎡(39.51坪)
- ポーチ面積
- 3.312㎡(1.00坪)
- 組込車庫・物置
- 0.828㎡(0.25坪)
- 平屋面積
- 30.401㎡(9.20坪)
- 施工面積
- 134.745㎡(40.76坪)
【 1F 】

【 2F 】

¥35,471,969
=①+②+消費税(10%) (¥3,224,724)
①本体工事
坪単価73.4万円
- 延床面積
- 39.51坪×
- ¥573,000 =
- ¥22,639,230
- ポーチ面積
- 1.00坪×
- ¥532,000 =
- ¥532,000
- 組込車庫・物置
- 0.25坪×
- ¥480,000 =
- ¥120,000
- 平屋面積
- 9.20坪×
- ¥92,000 =
- ¥846,400
- 基本固定工事
- 一式
- ¥5,769,000
- ①本体工事合計
- ¥29,906,630
②別途・付帯工事
- 屋外給排水工事※
- ¥468,000
- 分水工事※
- ¥429,000
- ガス配管引込
- ¥302,092
- 化粧外壁
- ¥62,376
- 外部フカシ壁
- ¥81,572
- 1F洗面オプション
- ¥70,100
- 2F洗面化粧台追加
- ¥179,800
- 化粧梁
- ¥207,241
- 可動棚追加
- ¥82,710
- 玄関土間延長工事
- ¥149,614
- 建具変更差額 (標準外・オリジナル)
- ¥16,000
- 玄関収納
- ¥143,600
- トイレ収納 (YKKapビルトインタイプ)
- ¥53,800
- カウンター造作 (W1800 D450)
- ¥94,710
- ②別途・付帯工事合計
- ¥2,340,615
※概算。敷地により変動有








