2×4からでも諦めない使いやすさにフィットした空間
2×4からでも諦めない使いやすさにフィットした空間
- 竣工年月
- 2025年9月
BEFOREリビング、ダイニング、キッチン:リフォーム前のLDK
BEFOREリビング、ダイニング、キッチン:リフォーム前のLDK
BEFOREリビング、ダイニング、キッチン:リフォーム前のLDK
BEFOREキッチン:リフォーム前のキッチン
BEFORE和室:リフォーム前の和室
BEFOREトイレ:リフォーム前のトイレ
BEFOREラバトリー・洗面所:リフォーム前の洗面所
BEFORE階段、ホール:リフォーム前の2階ホール
BEFORE玄関、ホール:リフォーム前の玄関ホール
BEFORE玄関:リフォーム前の玄関
BEFORE間取図:リフォーム前の間取図
AFTERキッチン、設備:キッチンはLIXILのND、お色はグレージュスタッコを採用
AFTERキッチン:通路幅が広く複数人でも作業しやすくもたつかない動線
AFTERキッチン、壁紙:下がり天井とアクセントクロスでゾーニング
AFTERキッチン、設備:背面のカウンターはあえて木目調を選びナチュラルモダンに
AFTERキッチン、食品庫:大容量のパントリーでいつでも整頓された空間に
AFTERリビング、ダイニング、キッチン:和室を洋室に変更しひとつながりの開放的なLDKに
AFTERダイニング、キッチン:木目のフローリングを縦貼りに変更し奥行き感をアップ
AFTERリビング、ダイニング、キッチン:グレーの壁紙と間接照明が映えるLDK
AFTER洋室、収納:洋室の壁面にはクローゼットを造作しいつでも整頓された空間に
AFTERラバトリー・洗面所、設備:洗面台はLIXILのカスタムバニティ1800幅複数人でも同時に身支度可能で楽々
AFTER洋室:壁の一面にはデニム調のアクセントクロスを採用し遊び心をプラス
AFTER寝室:主寝室には2種類のアクセントクロスで大人かわいい空間に
AFTER書斎:主寝室の一角には趣味やお仕事につかえる念願の書斎スペースを造作
AFTER階段、ホール:2階ホールにはトイレを増設しストレスフリーな暮らしに
AFTER玄関、階段、ホール:階段は一部をアイアン手摺に変更しガラッと印象をチェンジ
AFTER玄関、ホール:あえて窓をなくし収納を拡張、間接照明が印象的な玄関に
AFTER内装:リビングドアはLIXILのラシッサDヴィンティアお色はネイビーブルー
AFTERバスルーム、設備:浴室はLIXILのAX、木目調のアクセントパネルで優しい印象に
AFTERトイレ、設備:トイレはお手入れのしやすいタンクレス、LIXILのJフィットをご採用
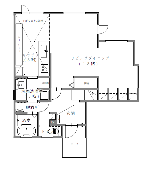
AFTER間取図:リフォーム後の間取図









構造上、設計の自由度が低い2×4構造でも“無理なく・心地よく”を追求。オーナー様の暮らしに合わせ、リフォームだからこそできる対応力で間取りの最適化を行いました。動線の要となる水まわりは2階にトイレを増設、キッチンは使いやすい対面式へ。ストックが見えるパントリーも造作し家事効率が上がります。洗面は幅1800のワイドカウンターで、忙しい朝や就寝前の支度もスムーズに。リビング横の和室は洋室へ改装し、続き間とすることで開放感を演出し使いやすさも向上。壁面には弊社の施工実例からご採用の“家族別クローゼット”で片づける場所を明確化し、いつでも整頓された空間に。主寝室には念願の書斎コーナーをプランニングし、アクセントクロスで大人かわいい表情をプラス。玄関はあえて窓をなくして収納量を確保し、足元の間接照明で印象的で上質な迎え入れを叶えました。